LOT
88

1 Cheltenham Place, Newquay, Cornwall, TR7 1BA

£215,000+ - *
Guide price (+ fees)

About this property

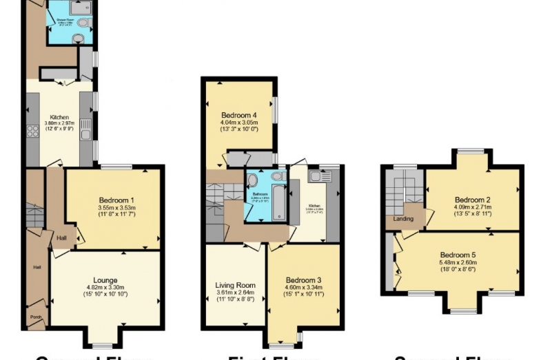
An interesting opportunity to acquire a three storey freehold town centre premises, currently comprising of a one bedroom ground floor flat and an upper floors four bedroom maisonette, with enclosed rear garden area and on street parking. The property would lend itself for investment purposes, multigenerational occupancy or for conversion to a sizeable family home subject to any requisite consents.

Situated

Cheltenham Place is ideally located within walking distance to the centre of Newquay and under 0.5 miles away from your nearest beach. Newquay offers a range of amenities including a number of popular bars and restaurants, many sandy beaches including the world renowned surfing beach of Fistral, a popular golf course and several superstores. Newquay airport is seven miles distant.

Flat One
Entrance hall, living room, kitchen, two bedrooms and a shower room.

Flat Two
Entrance hall, living room, kitchen, three bedrooms and bathroom.

EPC Rating

Flat 1 - D

Flat 2 - E

Council Tax Band

Flat 1 - A

Flat 2 - B

1 Cheltenham Place, Newquay, Cornwall, TR7 1BA TR7 1BA

Arrange a Viewing/Enquiry

Simply fill in and send the form and one of our consultants will get in touch with you shortly.

Please note that fields marked with * are mandatory.

Your information is being collected and processed by Countrywide. All information will be processed in accordance with the General Data Protection Regulation. Full details of how we process your information can be found on our website Privacy Policy. Print copies of our privacy notice are available on request. If you need to discuss how your information is being processed, please contact us at privacy@countrywide.co.uk

* Guide Price

An indication of the seller’s current minimum acceptable price at auction. The guide price or range of guide prices is given to assist consumers in deciding whether or not to pursue a purchase. It is usual, but not always the case, that a provisional reserve range is agreed between the seller and the auctioneer at the start of marketing. As the reserve is not fixed at this stage and can be adjusted by the seller at any time up to the day of the auction in the light of interest shown during the marketing period, a guide price is issued. This guide price can be shown in the form of a minimum and maximum price range within which an acceptable sale price (reserve) would fall, or as a single price figure within 10% of which the minimum acceptable price (reserve) would fall. A guide price is different to a reserve price (see separate definition). Both the guide price and the reserve price can be subject to change up to and including the day of the auction.

* Reserve Price

The seller’s minimum acceptable price at auction and the figure below which the auctioneer cannot sell. The reserve price is not disclosed and remains confidential between the seller and the auctioneer.

Both the guide price and the reserve price can be subject to change up to and including the day of the auction.

Buyers Fee

You will also pay a Buyers Administration Charge, to the auctioneers of 1.35%+VAT of the purchase price subject to a minimum fee of £1,800 + VAT (unless otherwise stated in the property description in the catalogue or addendum).

Legal Packs

You are bidding on the basis that you have made all necessary enquiries, particularly in respect of lots the auctioneer has not inspected or had initial sight of tenancy details, and have checked the General and Special Conditions of Sale and are satisfied that you fully understand their content. Please note that some legal packs may contain additional fees (such as the requirement for the seller to pay the vendor's legal fees).